Wohneinheit 3: 131,55 qm
| Etage | 1. OG |
| Zusätzlich ein Kellerraum | 10,00 qm |
| Loggia inkl. Balkon | 7,00 qm |
| Kaltmiete | 1.710,15 € |
| Nebenkosten | 302,57 € |
| Stellplatz | 80,00 € |
| Kaution | 3.580,30 € |
Dresden – Grüne Straße 13
Premium-Wohnungen direkt am Herzogingarten
Mit Tiefgarage im Untergeschoss

Erstbezug
Unsere Wohnungen sind großzügig und haben eine top Ausstattung. Das Objekt liegt im Zentrum der Stadt Dresden.

Effizient
Der Neubau mit modernster Technik und top Energieeffizienz bietet komfortable Wohnungen im Herzen von Dresden.

Ambiente
Raum zum Leben und Arbeiten. Großflächige Wohnungen für Gemeinsamkeit und Invidualität.
City
Beschreibung
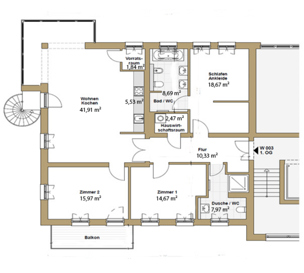
| Geschoss: | 1.OG |
| Wohnung: | 003 |
| Raum | Fläche in m² |
| Flur | 10,33 |
| Dusche/WC | 7,97 |
| Schlafen | 18,67 |
| Bad/WC | 8,69 |
| HWR | 2,47 |
| Zimmer 1 | 14,67 |
| Zimmer 2 | 15,97 |
| Wohnen | 41,91 |
| Kochen | 5,53 |
| Vorrat | 1,84 |
| Balkon 1/2 | 3,50 |
| Wohnfläche: | 131,55 |
Andere Wohnungen
Wohneinheit 4
Wohneinheit 5
Diese Angaben unterliegen den Datenschutzbestimmungen. Eine Weitergabe an Dritte erfolgt nicht.
Der Verwendung persönlicher Daten kann jederzeit durch eine formlose E-Mail an service@reppe.de widersprochen werden, ohne dass hierfür andere als die Übermittlungskosten nach den Basistarifen entstehen. Widersprechen Sie einer Verarbeitung Ihrer Daten zu werblichen Zwecken, werden Ihre Daten für diesen Zweck gesperrt.


